《magicplan app》是一款包含了多种室内设计知识的功能强大的手机软件,让你在手机上就能轻松体验到工匠、空间调整师和室内设计师等人群的装修绘图工具,软件整合了多种不一样元素,让用户们方便使用。
基本简介
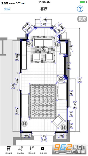
屡获殊荣的magicplan安卓版可让您通过拍照来创建专业的平面图。使用magicplan软件产生全面的工作量估算值,三维查看空间,规划DIY项目,或者用于家庭装修。
在几分钟内创建平面图,并可以轻松编辑。单击即可添加对象、照片、注释、产品价格表、任务和税金。
购买平面图,以PDF、JPG、DXF、PNG、SVG和CSV的格式呈现。与任何magicplan用户分享。并可以用3D形式查看。将它们作为互动平面图发布在网络上 - 或将其存储在magicplan Cloud上,以便于在多个设备上查看和编辑它们。
magicplan是房地产经纪人、工匠、空间调整师、消防员、建筑师、验房员、室内设计师、小型企业、家具零售商和喜欢自己动手人群的理想应用。
功能介绍
magicplan已在全球广泛使用:
&8226;有超过1200万名用户下载
&8226;2012年度在3个国家获得最佳应用称号
&8226;在107个国家被评为一周应用之星
&8226;在76个国家被评为1 iPhone工具
&8226;在104个国家被评为1 iPad工具
免费部分:
您可以在您的设备上免费下载和使用magicplan。
需要购买的部分:
&8226;某些被锁定的对象。
&8226;获取PDF + JPG + 3D +互动网站+ DXF + CVS + PNG + SVG。
&8226;商业用途。
购买选项:
&8226;购买:一次购买一张平面图,价格为2.99美元。
&8226;订阅:每月支付$9.99的订阅费,可以无限制使用。付款将在确认购买时从iTunes帐号收取。除非在本期结束前至少24小时关闭自动续订,订阅将自动更新。账户将在本期结束前24小时内收取9.99美元的续费。订阅可以由用户管理,在购买后,自动续订可以在用户的帐户设置中关闭。在有效订阅期间不允许取消当前订阅。
支持激光测距仪:
&8226;BOSCH GLM 100 C Professional,GLM 50 C Professional, PLR 30C, PLR 40C, PLR 50C
&8226;DeWalt DW03201
&8226;Leica Disto D110,D510(欧洲),E7500i(北美),D810,S910,D1,D2
&8226;Stabila LD520,LD250 BT
&8226;Stanley TLM99,TLM99s,TLM99si,TLM660
&8226;WDM 8-14
兼容性
&8226;需要陀螺仪。
magicplan技术受到多项专利保护。
更新日志
修复已知BUG,优化功能
软件评测
magicplan安卓版app是一款功能强大的手机软件,是面向于房地产经纪人、工匠、空间调整师和室内设计师等人群的装修绘图工具。magicplan安卓版app实现了多个实用功能,且使用用途简单,是喜欢/需要动手人群的理想应用。

tanksalot
泰坦之路
时尚女孩游戏
种田掌门人
捡到相扑选手
绿茵巅峰之路
放置体育馆正版
虫虫助手游戏破解盒子
神奇宝贝go
火柴人足球
highheels游戏正版

荒岛求生app
疯狂潮鞋游戏
粉碎僵尸城1.2.5
街头赛车26.5.2
奇妙的森林猫里奥1.1.4
高校模拟少女3.3
指尖画家1.4.2
模拟人生移动版国际服49.0.1.160658
爷爷和奶奶5起源v1.25
世界末日生存(正版)1.12.2
命悬一日中文版6.4.0
疯狂夸父追神马1.0.27
扎心英雄1.0.1
KOONGYA绘画派对2.1.0.41
全民商战1.0.3
这就是逆袭1.9.2
sans审判模拟器1.1
幻兽爱合成单机版2.6.4
易碎的虫子手机版1.2.8
神龙割草1.0
银河射手2.0.0
果冻人快跑6.5.0
Austale0.4379
粪作视觉小说(クソノベル)1.0.0
猫咪大战争6周年破解版
球球英雄华为版本
众多回忆的拉面食堂无限体力
乐高指环王
西米宝宝托儿所正版
我要活下去内购破解版
我要活下去破解透视版
我要活下去无限血版(Free Fire)
freefire大逃杀
我要活下去uc版
皮皮虾传奇乐港游戏
末日打僵尸手机版
儿时的街机游戏
拼图游戏大全
原神
生活实用APP